00件
最近見た物件
00件
検討リスト
ホームメイトFC糸満店 (有)住宅管理社 > (戸建(売買))地域から探す > 南城市 > 南城市佐敷手登根分譲【A棟】 > 物件詳細
【A棟】内覧ご予約受付中!
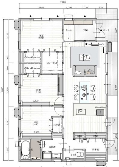
新築2月初旬完成予定!人気の平屋戸建て広々80坪の敷地!駐車場3台可能!防犯カメラ・対面システムキッチン・浴室乾燥機・ガス衣類乾燥機などの設備も充実しています!シューズボックス・ウォークインクローゼット・各部屋収納スペースも付いています。キッチン裏には家事室も付いて洗濯やアイロン・収納や趣味のスペースとしても利用可能です。











(※元利均等方式 金利5.00%まで ※返済年数5~50年まで入力できます)
(※ボーナスは年2回で計算しています。1000万円まで入力できます)
(※物件購入時、その他諸費用が発生する場合がございます)
| 所在地 | 沖縄県南城市佐敷字手登根741-1(地番) | ||
|---|---|---|---|
| 交通 |
|
||
| 間取り/詳細 |
3LDK/ LDK 17.7帖 1室/洋室 6.0帖 1室/洋室 5.5帖 1室/洋室 5.0帖 1室 |
建物面積(坪数) | 84.46㎡(25.54坪) |
| 価格 | 3,880万円 | ||
| 駐車場/月額料金 | -/- | ||
| 土地の敷金/保証金 | -/- | 借地料/借地期間 | -/- |
| 土地権利 | 所有権 | 土地面積(坪数) | 265.00㎡(80.16坪) |
| 傾斜地部分面積 | - | 路地状敷地 | - |
| 私道負担面積/セットバック | -/無 | 高圧線下面積 | - |
| 地目/地勢 | 畑/平坦 | 接道状況 | -(北 公道 4.8m 間口 10.0m) |
| 建ぺい率/容積率 | 60%/200% | 用途地域 | - |
| 都市計画 | 非線引区域 | 種別/構造 | 新築一戸建/木造 |
| 階建 | 1階建 | 築年月(築年数) | 2026年 2月 (予定) |
| 総区画数/販売区画数 | -/- | 向き | - |
| 現況 | 未完成 | その他の法令上の制限 | - |
| 取引態様/引渡時期 | 売主/相談 | 建築確認番号 | 第2024-347号 |
| 物件番号 | 100180201 | 取引条件の有効期限 | 2026年02月02日 |
| 設備条件 |
|
||
| 備考 |
グーグルマップ表示:南城市佐敷手登根751 ※内覧ご予約受付中!お気軽にお問い合わせください。 ※売主になり仲介手数料なしになります。 |
||
| 取扱会社 |
|
||
| QRコード |
このQRコードを読み取ることで、スマホでも物件情報を確認できます。 |
||
※地図上に表示される物件の位置は付近住所に所在することを表すものであり、実際の物件所在地とは異なる場合がございます。
南城市の町名から探す